Игровой комплекс серия H модель 1

Цена
1 479 350 

Характеристики

Характеристики
  • Страна производства: Россия
  • Код изделия: Н090295
  • Серия: серия H
  • Масса: 1242,4 кг
  • Высота, см: 336 см
  • Ширина, см: 350 см
  • Длина (глубина), см: 784 см
  • Материал: дерево
  • Цвет: коричневый
  • Размещение: на улице
  • Особенности комплектации: рукоход, гладиаторская сетка, горка, лестница
  • Возрастная группа: 4-6, 7-10, 11-14
  • Способ установки: на анкера (в комплект не входят)
  • Сертифицированные по ГОСТу: есть
  • Категория:  По ГОСТу, Деревянные, Во двор, С горкой, Большие, Детские площадки, Из бруса, Taalo

Описание

МОНТАЖ ПРОИЗВОДИТСЯ СТРОГО НА РОВНУЮ ПОВЕРХНОСТЬ, БЕЗ УКЛОНОВ, БУГРОВ И ЯМ.

Цвет комплектующих может отличаться, отгружается из наличия на складе.

Надежная и долговечная детская игровая - спортивная конструкция из древесины сибирской лиственницы для детской площадки в зонах общественного пользования: парки, скверы, дворы многоквартирных домов, территории детских садов, школ и торгово-развлекательных центров, коттеджные поселки. Поможет организовать интересный досуг детям и отлично сочетается с городским и природным ландшафтом.

Детская площадка предназначена для детей от трех до четырнадцати лет, создает условия для общего физического развития ребенка, развития координации движений и ловкости, смелости и преодоления страха высоты, развивает чувство коллективизма в массовых играх, а игровые панели способствуют развитию логического мышления и воображения.

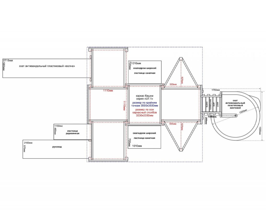
Основа детской игровой - спортивной конструкции – три башни с мостами и балконами «серия Н». Конструкция оснащена тремя двухскатными деревянными крышами, встроенным полом, встроенным столиком с лавками в нижней части конструкции, пластиковым антивандальным скатом с превосходной скользящей поверхностью, антивандальным винтовым скатом с переходным мостиком, «П»-образным деревянным рукоходом, скалодромом, канатной лестницей с армированным канатом, деревянной лестницей, антивандальными пластиковыми игровыми панелями и антивандальными штурвалами. Для безопасности ребенка предусмотрены перила на лестнице, заборчики и ограждения над зонами препятствий (скат).

Выберете более подходящий для Вас цвет ската: желтый, зеленый, красный, синий.

Комплектация (обозначение габаритов – длина/ширина/высота):

  • каркас башни «серия Н» 3500х3500х3000мм. (высота от уровня площадки 3000мм.) - 1ком.;
  • стойка центральная 80х40х2200мм. (длина/ширина/высота) - 1ком.;
  • платформа - пол встроенный 1200х940х60мм. (установка на высотах от уровня площадки 80мм. и 1500мм.) - 10ком.; 
  • платформа - пол встроенный угловой 1000х825х60мм. (установка на высотах от уровня площадки 80мм. и 1500мм.) - 4ком.;
  • стол с лавочками встроенный 2200х1280х700мм. (высота стола 700мм., лавочки 350мм.) - 1ком.;
  • ограждение -  забор длинный 1200х40х620мм. (высота от уровня платформы 700мм.) - 5ком.; 
  • ограждение -  забор для углового балкона 1020х40х620мм. (высота от уровня платформы 700мм.) - 4ком.;
  • крыша деревянная двускатная полотно салатовое 1380х1280х470мм. (высота от уровня площадки 3360мм.) - 3ком.;
  • лестница-стремянка деревянная 1650х480х80мм. / 5 ступеней (установка на высоту от уровня площадки 1500мм.) - 1ком.;
  • перила для лестницы деревянные 1650х40х340мм. (высота от уровня ступеней 600мм.) - 1ком.;
  • ограждение над скатом 1200х130х860мм. (высота от уровня платформы 700мм.) - 1ком.;
  • скат пластиковый «Bronco» антивандальный 3270х580х570мм. (ширина ската внутри 400мм., высота борта 150мм.; установка на высоту от уровня площадки 1500мм.) - 1ком.;
  • мостик с ограждением для винтового ската 1200х990х780мм. (высота бортов от уровня платформы 700мм.) - 1ком.;
  • скат пластиковый «винтовой» антивандальный 1500х1500х2000мм. (ширина ската внутри 450мм., высота борта 300мм.; установка на высоту от уровня площадки 1500мм.) - 1ком.;
  • рукоход «П»-образный деревянный 2200х570х2200мм. (установка на высоту от уровня площадки 2200мм.) - 1ком.;
  • скалодром широкий 1650х1010х80мм. / 12 камней (установка на высоту от уровня площадки 1500мм.) - 1ком.;
  • лестница канатная армированный канат 1650х1010х80мм. (установка на высоту от уровня площадки 1500мм.) - 1ком.;
  • игровая панель (пластик, дерево) 1200х40х750мм. - 2 ком.; 
  • штурвал (сталь, пластик) 450х450х134мм. - 2ком.;
  • анкер арматурный 800мм. (вбивается в основание площадки) - 10ком.;

Габариты конструкции: 7835х3500х3360мм. (длина/ширина/высота); S-27,4м²

Габариты площадки для установки конструкции с учетом зоны безопасности: 10835х6500мм. (длина/ширина); S-70,4м².

Для перевозки транспортной компанией: 

  • общий вес 1242,4кг.; общий объем 7,7м³;
  • количество мест 60 (самое длинное место 3270мм., самое широкое место 1500мм., самое высокое место 1500мм.);
  • в жесткую обрешётку 1 место-пластиковый скат (вес 38кг., 3270х580х570мм., объем 1,1 м³.), 1 место-пластиковый скат винтовой (вес 40кг., 2000х1500х1500мм., объем 4,5 м³.)

Материалы:

Каждая деревянная деталь детской игровой конструкции (конструктор) состоит из древесины сибирской лиственницы: клееный и сращенный брус лиственницы сечением 90х90мм.; клееный и сращенный брус лиственницы сечением 80х40мм., доска – планкен из лиственницы сечением 90х20мм. (камерная сушка, влажность 8-16%). Каждая деревянная деталь обработана в два слоя безопасным для детей покрытием – маслом для террасной доски и восковой лазурью «ADLER» (цвет «орех», «зеленое яблоко»), торцы деталей дополнительно запечатаны мастикой. Рекомендуем обновлять покрытие деревянных элементов конструкции (при естественном износе покрытия, один раз в 2-3 года) или проводить реставрацию отдельных конструктивных элементов (при механическом повреждении), необходимо подобрать по цвету масло для террасной доски, предназначенное для эксплуатации на улице, любого производителя.

Крепеж и подвесы из оцинкованной стали от европейских производителей обеспечивает надежное соединение каждого элемента конструкции.

Фурнитура от европейского производителя «КВТ» (скаты, сидения для качелей, игрушки, канаты, крепежи), надежная и долговечная, защищена от воздействия УФ излучения (не выгорает), влагостойкая и морозостойкая, диапазон эксплуатации от - 60°С до +60°С. Антивандальный пластиковый скат обладает отличной скользящей поверхностью, защитой от воздействия солнечных лучей (не греется, не выгорает), не образует статического напряжения.

Рекомендованная распределенная единовременная нагрузка: игровая платформа 350кг., деревянная лестница 100кг., скалодром 150кг., канатная лестница 150кг., рукоход 150кг, столик с лавочками 200кг., скат 150кг.

Подготовка к сборке, сборка:

До установки детской игровой конструкции (конструктор) необходимо подготовить поверхность детской площадки.

Для безопасной эксплуатации конструкции, площадка должна быть свободна от зеленых насаждений, сооружений и других конструкций, ровная, без перепадов уровня, без впадин и насыпей. Габариты площадки с учетом зоны безопасности длина 10835мм. ширина 6500мм., площадь площадки S-70,4м². Запрещено устанавливать конструкцию в зонах с повышенным риском провалов в грунте (болотистая местность, береговая линия водоемов, в непосредственной близости с оврагами и обрывами). 

Типы оснований: естественный грунт средней плотности и выше (Pd≥1,2г/см³), готовое асфальтобетонное основание, газон с дренажным основанием. Поверхность основания по крайним точкам конструкции длина 7835мм., ширина 3500мм., должна быть выровнена по горизонту, допустимый уклон поверхности 20мм на 10 погонных метров. Все элементы конструкции соприкасающиеся с поверхностью основания конструкции должны быть в единой плоскости. Необходимо бетонировать основание винтового ската – металлическая труба d120мм., дополнительно отдельные элементы конструкции необходимо зафиксировать арматурными анкерами.

Конструкцию возможно собрать самостоятельно (в паспорте указана очередность сборки элементов конструкции, в упаковках с отдельными конструктивными элементами прилагаются инструкции по сборке и метизы), или воспользуйтесь услугами наших профессиональных сотрудников.

Каждая детская игровая конструкция –  конструктор «трансформер», элементы конструкции возможно менять местами - отображать зеркально, при этом важно соблюдать особенности сборки конструкции, правила безопасной эксплуатации конструкции.

Для самостоятельной сборки понадобится: лестница-стремянка, измерительная рулетка, карандаш, киянка, уровень, шуруповерт, сверло d4мм., сверло или перо d10мм., набор бит с насадками «TORX» и «шестигранник», набор гаечных ключей, при установке на бетонное основание необходим перфоратор для сверления отверстий, оборудование для бетонирования.

Адрес пункта выдачи в Благовещенске: ул Мухина, дом 110А, пав. лит. А5.

Самовывоз в Благовещенске
По адресу: Благовещенск улица Мухина 114/5 Строение 5

Доставка без выгрузки по Благовещенску 2 000 

Установка 369 840 

Белогорск, Свободный, Тында, Зея, Шимановск, Райчихинск, Завитинск, Магдагачи, Екатеринославка, Прогресс, Серышево, Сковородино, Архара, Тамбовка, Циолковский, Вельск, Няндома, Коноша, Каргополь, Плесецк, Октябрьский, Савинский, Березник, Красноборск, Североонежск, Шенкурск, Карпогоры, Лешуконское, Ерцево, Холмогоры

По QR коду

Банковской картой на сайте

Рассрочка -- от Тинькофф

Безналичный платеж для юр.лиц

ВозвратВ течение 14 дней

Гарантия 12 месяцев

Также дополнительно заказывают
Похожие изделия