Зимняя горка TORUDA Север wood-8/1 (скат 9 м)

Цена
570 040 

Характеристики

Характеристики
  • Страна производства: Россия
  • Код изделия: Н145417
  • Масса: 1010 кг
  • Высота, см: 508 см
  • Ширина, см: 361 см
  • Длина (глубина), см: 1024 см
  • Материал:
  • Цвет:
  • Размещение: на улице
  • Особенности комплектации:
  • Возрастная группа:
  • Способ установки:
  • Длина ската: 900 см
  • Материал ската:
  • Диаметр гнезда, см:
  • Толщина:
  • Тип (конструкция):
  • Категория:  Деревянные, Горки, Зимние, Для дачи, Большие

Описание

Горка может быть использована в общественных местах при условии окрашивания.

ВНИМАНИЕ: Горка производится без окрашивания. После покупки покраску нужно выполнить самостоятельно.

Любую горку можно разобрать и собрать.

Горки собираются на саморезы разной длины.

Для использования зимних горок в общественных местах необходимо ОБЯЗАТЕЛЬНО приобрести табличку: "Правила использования зимней заливной горки", не входит в стоимость горки, приобретается отдельно.

Универсальная деревянная зимняя горка TORUDA Север wood-8/1 – модель с самым длинным скатом из зимней линейки без покраски (9 м).

Её каркас сделан из клееного бруса. Он устойчив к влажности, морозу, перепадам температуры, что делает игровой комплекс всепогодным и всесезонным. Также обладает высокой прочностью, сохраняет геометрию в процессе эксплуатации. 

Безопасность детей обеспечивается тщательной шлифовкой и скруглением деталей еще на этапе их производства. Металлические шляпки болтов конструкторы предусмотрительно закрыли несъемными пластиковыми заглушками.

Характеристики:

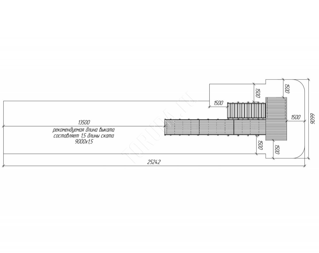
  • Длина: 10242 мм
  • Ширина: 3606 мм
  • Высота: 5082 мм
  • Длина ската: 9000 мм
  • Ширина ската: 1250 мм
  • Высота платформы: 2300 мм
  • Обработка дерева: комплекс поставляется БЕЗ ПОКРЫТИЯ
  • Силовые детали: клееный брус 90х90 мм
  • Материал: ель/сосна камерной сушки
  • Ступени: антискользящие с ребристой поверхностью
  • Деревянная крыша: да

Адрес пункта выдачи в Благовещенске: ул Мухина, дом 110А, пав. лит. А5.

Самовывоз в Благовещенске
По адресу: Благовещенск улица Мухина 114/5 Строение 5

Доставка без выгрузки по Благовещенску 2 000 

Установка 142 510 

Белогорск, Свободный, Тында, Зея, Шимановск, Райчихинск, Завитинск, Магдагачи, Екатеринославка, Прогресс, Серышево, Сковородино, Архара, Тамбовка, Циолковский, Вельск, Няндома, Коноша, Каргополь, Плесецк, Октябрьский, Савинский, Березник, Красноборск, Североонежск, Шенкурск, Карпогоры, Лешуконское, Ерцево, Холмогоры

По QR коду

Банковской картой на сайте

Рассрочка -- от Тинькофф

Безналичный платеж для юр.лиц

ВозвратВ течение 14 дней

Гарантия 12 месяцев

Также дополнительно заказывают
Похожие изделия